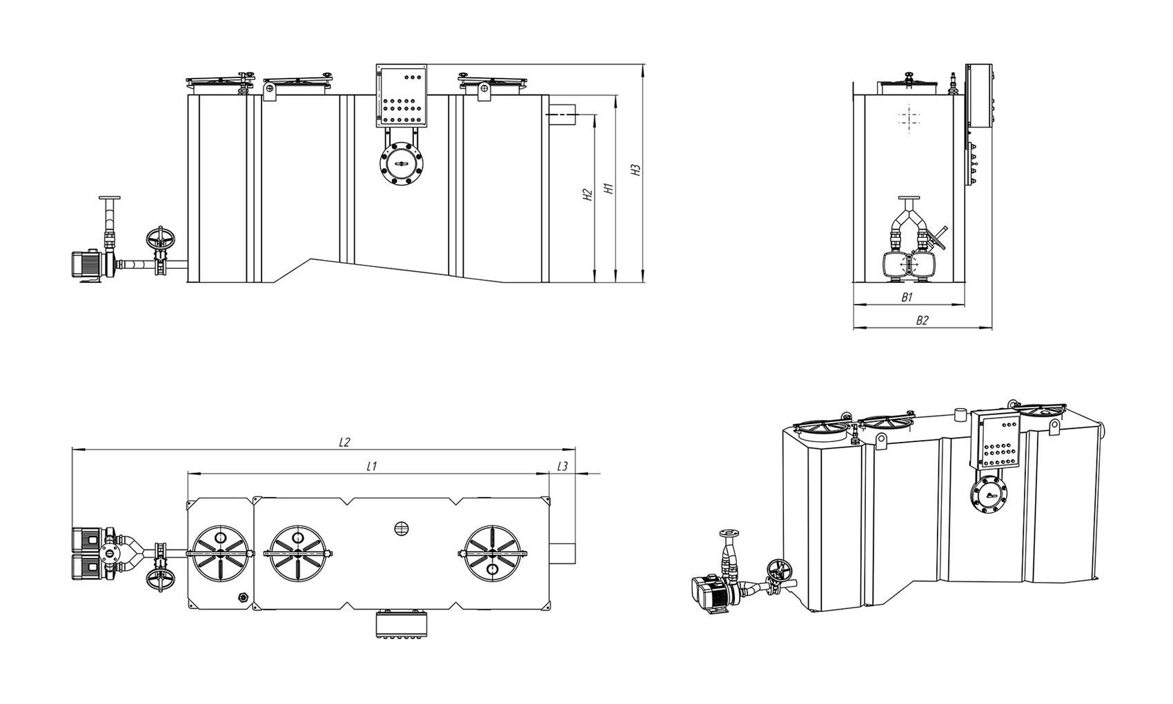
Габариты и чертежи
| Номинальная величина | Размеры | ||||||||
|---|---|---|---|---|---|---|---|---|---|
| L1 | L2 | L3 | B1 | B2 | H1 | H2 | H3 | DN | |
| л/с | мм | мм | мм | мм | мм | мм | мм | мм | мм |
| 1 | 1429 | 2555 | 208 | 635 | 707 | 916 | 1050 | 1382 | 100 |
| 2 | 1429 | 2555 | 208 | 635 | 707 | 1110 | 1244 | 1576 | 100 |
| 3 | 1780 | 2906 | 208 | 635 | 707 | 1110 | 1244 | 1576 | 100 |
| 4 | 2130 | 3256 | 208 | 635 | 707 | 1110 | 1244 | 1576 | 100 |
| 5.5 | 2180 | 3306 | 208 | 885 | 957 | 1335 | 1494 | 1735 | 150 |
| 7 | 2380 | 3506 | 208 | 885 | 957 | 1335 | 1494 | 1735 | 150 |
| 8.5 | 2680 | 3806 | 208 | 885 | 957 | 1335 | 1494 | 1835 | 150 |
| 10 | 2870 | 3996 | 208 | 885 | 957 | 1335 | 1494 | 1835 | 150 |
Жироотделитель для установки внутри отапливаемых помещений, предназначен для удаления жира растительного и животного происхождения из сточных вод естественным самотеком без внешней энергии. Жироуловитель предназначен для отделения светлых жидкостей, например, бензина, топливных материалов и топливного масла, и не описывает очистку сточных вод исключительно с содержанием устойчивых эмульсий жиров и масел. Работа жироотделителя подтверждена сертификатами ТС, а так же лабораторными испытаниями.
Преимущества:
- Конструкция разработана в соответствии с Российскими нормативами, а также европейскими стандартами DIN-EN 1825-1, DIN-EN 1825-2, DIN-EN 4040-100;
- Цельный, прямоугольный корпус из нержавеющей стали 316L;
- На выбор правое/левое в зависимости от стороны установки инспекционного окна.
Комплектация
- Уровень комплектации: 0 из 5
- Артикул: 7110.11.11/7110.11.21
- Пропускная мощность: 10 л/с
- Объем шламкамеры: 1000 л
- Объем жиров: 520 л
- Общий объём: 2000 л
- Объём КНС: 574 л л
- Вес пустой: 415 кг
- Вес полный: 2415 кг
- Подключение: левое/правое
- Вход/выход DN: 150 см











