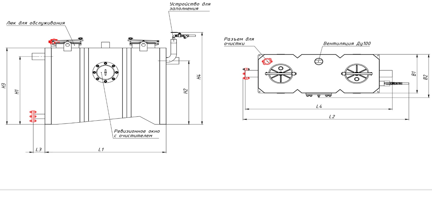
Габариты и чертежи
| Номинальная величина | Размеры | |||||||||||
|---|---|---|---|---|---|---|---|---|---|---|---|---|
| L1 | L2 | L3 | L4 | L5 | B1 | B2 | H1 | H2 | H3 | H4 | D | |
| л/с | мм | мм | мм | мм | мм | мм | мм | мм | мм | мм | мм | мм |
| 1 | 905 | 1435 | 154 | 1245 | - | 635 | 710 | 885 | 815 | 1050 | 1530 | 110 |
| 2 | 905 | 1435 | 154 | 1245 | - | 635 | 710 | 1110 | 1040 | 1250 | 1750 | 110 |
| 3 | 1255 | 1785 | 154 | 1595 | - | 635 | 710 | 1110 | 1040 | 1250 | 1750 | 110 |
| 4 | 1605 | 2147 | 154 | 1945 | - | 635 | 710 | 1110 | 1040 | 1250 | 1750 | 110 |
| 5.5 | 1655 | 2185 | 154 | 1995 | - | 885 | 945 | 1335 | 1265 | 1490 | 1840 | 160 |
| 7 | 1855 | 2285 | 154 | 2155 | - | 885 | 945 | 1335 | 1265 | 1490 | 1840 | 160 |
| 8.5 | 2155 | 2685 | 154 | 2565 | - | 885 | 945 | 1335 | 1265 | 1490 | 1840 | 160 |
| 10 | 2345 | 2875 | 154 | 2755 | - | 885 | 945 | 1335 | 1265 | 1490 | 1840 | 160 |
Жироотделитель для установки внутри отапливаемых помещений, предназначен для удаления жира растительного и животного происхождения из сточных вод естественным самотеком без внешней энергии. Жироуловитель предназначен для отделения светлых жидкостей, например, бензина, топливных материалов и топливного масла, и не описывает очистку сточных вод исключительно с содержанием устойчивых эмульсий жиров и масел. Работа жироотделителя подтверждена сертификатами ТС, а так же лабораторными испытаниями.
Преимущества:
- Конструкция разработана в соответствии с Российскими нормативами, а также европейскими стандартами DIN-EN 1825-1, DIN-EN 1825-2, DIN-EN 4040-100;
- Цельный, прямоугольный корпус из нержавеющей стали 316L;
- На выбор правое/левое в зависимости от стороны установки инспекционного окна.
Комплектация
- Уровень комплектации: 1 из 5
- Артикул: 1107.21.22
- Пропускная мощность: 7 л/с
- Объем шламкамеры: 700 л
- Объем жиров: 400 л
- Общий объём: 1600 л
- Вес пустой: 290 кг
- Вес полный: 1890 кг
- Подключение: левое/правое
- Вход/выход DN: 150 см
- Габариты: 2285*945*1840 мм
Стандартная комплектация:
- Инспекционное окно с вращающимся очистителем;
- 2 герметичные крышки не пропускают запах.
- Наполняющее устройство ¾” с подключением к холодной воде, шаровой клапан, фильтр;
- Патрубок напорной трубы очистки с пожарной гайкой R 2 ½”;
- Насос высокого давления;
- Моющая головка с ручным управлением, давление работы 200 бар, производительность 21 л/мин. Предназначена для измельчения, перемешивания и мойки в одном процессе, гарантирует ПОЛНУЮ очистку жироотделителя;
- Насос для откачки в утилизационную машину, мощность 2,8 кВт, 2895 об/мин, производительность 5,9 л/с при напоре 11,3 м;
- Задвижка насоса откачки;
- Датчик уровня наполнения жироотделителя.
Требования:
- Подключение холодной воды для откачки и очистки;
- Подключение холодной воды для наполнения;
- Подключение к электросети 400 В/ 50 Гц/16 A/5,6 кВт.
- Подключение к электросети 400 В/ 50 Гц/40 A/2,8 кВт. – для насоса откачки











