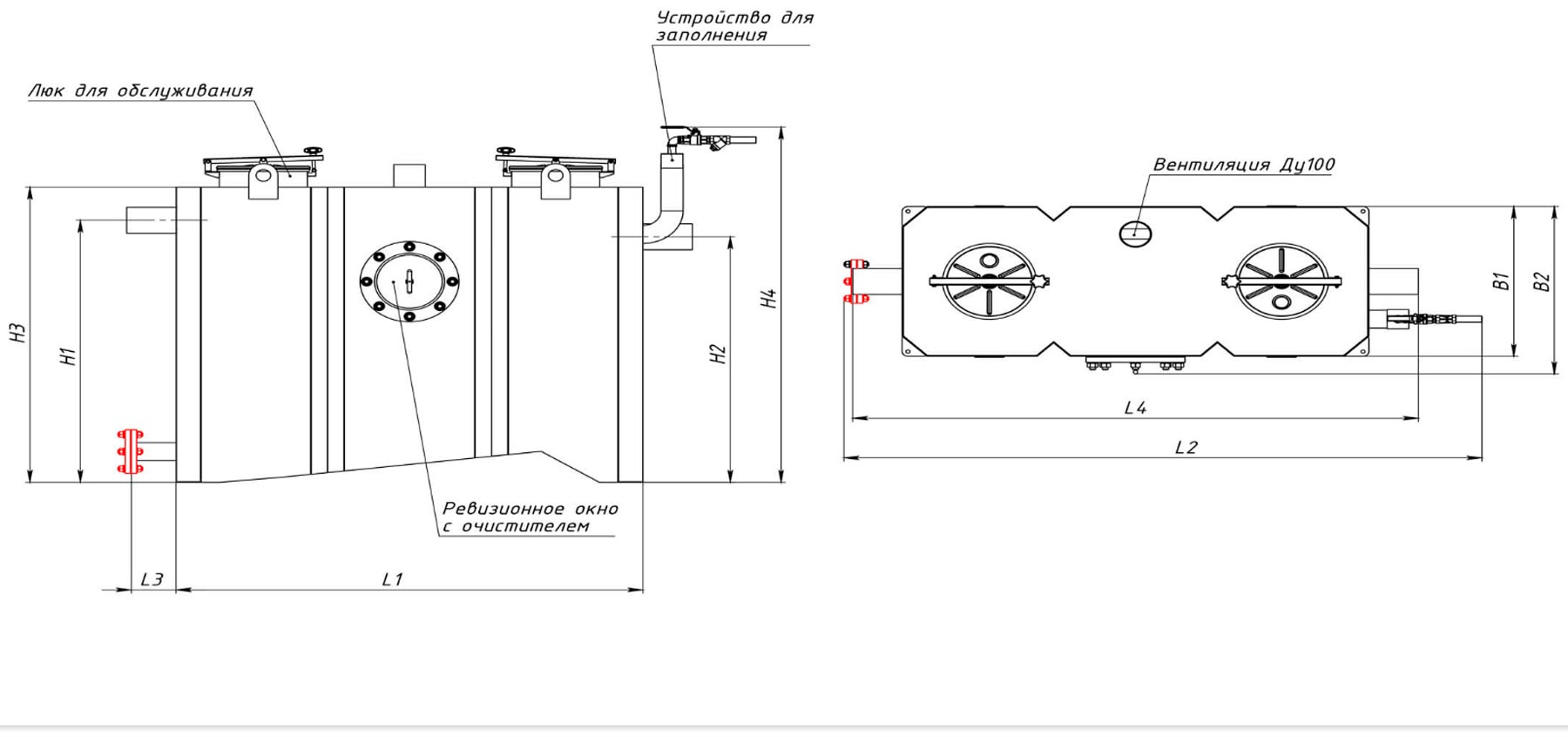
Габариты и чертежи
| Номинальная величина | Размеры | |||||||||
|---|---|---|---|---|---|---|---|---|---|---|
| D1 | L1 | L2 | L3 | L4 | H1 | H2 | H3 | H4 | D | |
| л/с | мм | мм | мм | мм | мм | мм | мм | мм | мм | мм |
| 2 | 1005 | 1260 | - | - | - | 950 | 1020 | 1250 | 1500 | 110 |
| 4 | 1005 | 1260 | - | - | - | 1220 | 1290 | 1544 | 1700 | 110 |
| 7 | 1475 | 1740 | - | - | - | 1450 | 1520 | 1775 | 2000 | 160 |
| 10 | 1475 | 1740 | - | - | - | 1600 | 1670 | 1950 | 2175 | 160 |
| 15 | 1750 | 2144 | - | - | - | 1780 | 1850 | 2185 | 2420 | 220 |
| 20 | 1750 | 2144 | - | - | - | 2000 | 2070 | 2385 | 2660 | 220 |
Жироотделитель для установки внутри отапливаемых помещений, предназначен для удаления жира растительного и животного происхождения из сточных вод естественным самотеком без внешней энергии. Жироуловитель предназначен для отделения светлых жидкостей, например, бензина, топливных материалов и топливного масла, и не описывает очистку сточных вод исключительно с содержанием устойчивых эмульсий жиров и масел. Работа жироотделителя подтверждена сертификатами ТС, а так же лабораторными испытаниями.
Преимущества:
- Конструкция разработана в соответствии с Российскими нормативами, а также европейскими стандартами DIN-EN 1825-1, DIN-EN 1825-2, DIN-EN 4040-100;
- Цельный, прямоугольный корпус из нержавеющей стали 316L;
- На выбор правое/левое в зависимости от стороны установки инспекционного окна.
Комплектация
- Уровень комплектации: 0 из 5
- Артикул: 1102.11.21
- Пропускная мощность: 2 л/с
- Объем шламкамеры: 200 л
- Объем жиров: 100 л
- Общий объём: 440 л
- Вес пустой: 170 кг
- Вес полный: 610 кг
- Подключение: левое/правое
- Вход/выход DN: 100 см
Стандартная комплектация:
- Инспекционное окно с вращающимся очистителем;
- 2 герметичные крышки не пропускают запах.
- Наполняющее устройство ¾” с подключением к холодной воде, шаровой клапан, фильтр;
- Патрубок напорной трубы очистки с пожарной гайкой R 2 ½”;
- Насос высокого давления;
- Моющая головка с ручным управлением, давление работы 200 бар, производительность 21 л/мин. Предназначена для измельчения, перемешивания и мойки в одном процессе, гарантирует ПОЛНУЮ очистку жироотделителя;
- Насос для откачки в утилизационную машину, мощность 2,8 кВт, 2895 об/мин, производительность 5,9 л/с при напоре 11,3 м;
- Задвижка насоса откачки;
- Датчик уровня наполнения жироотделителя.
Требования:
- Подключение холодной воды для откачки и очистки;
- Подключение холодной воды для наполнения;
- Подключение к электросети 400 В/ 50 Гц/16 A/5,6 кВт.
- Подключение к электросети 400 В/ 50 Гц/40 A/2,8 кВт. – для насоса откачки










